Galpão de um artista em São Paulo - Projeto de Arquitetura Comercial por Terazaki Arquitetos Associados
Projeto do Galpão de um artista em São Paulo
casa modular
flexibilidade estrutural
Conceito Arquitetônico do Projeto do Galpão de um artista em São Paulo
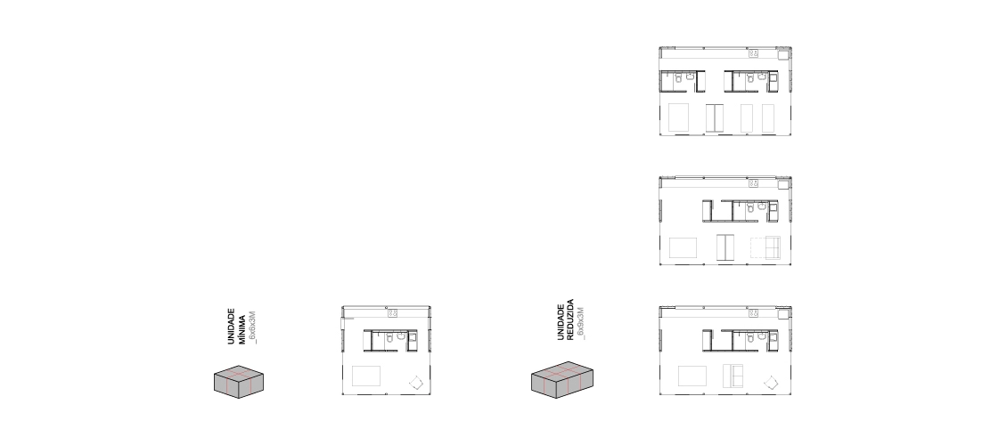
A unidade base possui 81m2, com superfície de 9.00 x 9.00m e 3 metros de pé direito. Estas dimensões são resultantes do arranjo de perfis metálicos em malha regular, a cada 3m, configurando 9 módulos. A composição da estrutura define a volumetria sintética. E confere flexibilidade de usos e programa, a partir da articulação dos espaços por módulos. A utilização de perfis de mercado e de elementos industrializados permitem replicar a unidade base em contextos diferentes. A adoção do sistema construtivo a seco traz racionalização de materiais e mão-de-obra, gera menos resíduos, otimiza o tempo e organiza o canteiro de obras de modo eficiente, preciso e socialmente responsável.
A rigidez do núcleo hidráulico ordena o crescimento da construção, evita improvisações na infraestrutura e libera a planta para definição dos demais espaços de estar, convivência e de repouso.
O conjunto ganha ressignificação a cada nova disposição dos espaços. Uma planta flexível que permite variações de configuração, desde ambientes integrados até espaços mais compartimentados. O bloco de serviços tem fechamento em telha metálica termoacústica com aberturas para iluminação natural. Já os demais ambientes têm fechamento em vidro no perímetro da construção, definindo assim, o aspecto do conjunto – um pequeno pavilhão.
Estrutura metálica - Detalhes e Singularidades

corte transversal
Ficha Técnica do Projeto de Arquitetura do Galpão de um Artista em São Paulo
ficha técnica
tipo de construção: residencial
início do projeto: 2015
status: concurso de projeto, não construído
autor: Márcia Terazaki
Prêmio BIM.BON 2015 – Arquitetura e Design de Produto











